L'Ajuntament licita les obres de l'Espai Social Juvenil d'Abú Masaifa
La junta de govern local de passat dilluns va aprovar la licitació de les obres d'habilitació del que serà l'Espai Social Juvenil d'Abú Masaifa. Es tracta d'un projecte liderat per la regidoria de Benestar Social, amb participació de Joventut, que consisteix, bàsicament, en recuperar l'antic local de la llar de jubilats per a usos socials i d'oci dirigit al públic juvenil, dotant de nous equipaments públics al barri Nordoest, un dels més poblats de la ciutat. L'immoble, propietat de la Fundació Bancaixa, té una superfície de 400 metres quadrats i actualment està llogat per l'Ajuntament.
La regidora de Benestar Social, Xelo Angulo, afirma que “sempre hem pensat que aquest local, tot i que és privat, no es podia deixar perdre i que calia aprofitar-lo per a un ús social. A l'inici de les noves polítiques socials ens plantejàrem que calia prestar més atenció als nostres joves. I per això ens hem esforçat en recuperar aquest espai cèntric per al gaudi de les ciutadanes i ciutadans de Xàtiva”.
L'actuació contempla una inversió de 334.154 euros. Cal recordar que aquest projecte va ser el tercer més votat en la consulta ciutadana de pressupostos participatius Decideix Xàtiva. Així mateix, l'obra forma part del Pla Director d'Inversions Xàtiva Creix. El termini d'execució previst és d'un any des de l'inici de les obres.
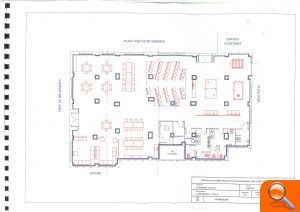
Sobre la dotació d'aquest centre juvenil, la previsió inicial és que compte amb diverses zones que oferisquen alternatives per ocupar el temps lliure del segment de població jove i adolescent, com ara un espai amb ordinadors, connexió a Internet i videojocs, una mini sala de cine, un espai per a reunions i tertúlies o una zona amb jocs com futbolins, ping pong, o billars.
Les obres consistiran en la reforma i ampliació dels banys, amb renovació de sanitaris i instal·lacions; renovació completa de fusteria, tant interior com fusteria metàl·lica; l'aïllament acústic complet del local; renovació de paviments i sostres; renovació de revestiments de parets, instal·lació elèctrica, climatització i proteccions contra incendis. També s'obrirà una nova eixida d'emergència.
El passat 22 de juny de 2016, l'alcalde Roger Cerdà i la regidora de Benestar Social, Xelo Angulo, es reuniren amb el president de la Fundació Bancaixa, Rafael Alcón i el seu gerent, Antonio Vidal, per a la signatura de l'acord per tal que l'Ajuntament arrendara el local. En un futur, es contempla la possibilitat que aquest centre albergue nous serveis que possibiliten l'organització de tallers formatius adreçats als col·lectius de dones, majors i persones amb diversitat funcional.










